- HOME
- 新築一戸建てをエリアから探す
- 平塚市
- 龍城ケ丘
- BEN’sGrande龍城ヶ丘
新築一戸建て
BEN’sGrande龍城ヶ丘
情報更新日:2026/04/25 次回更新予定日:2026/05/09 取引条件有効期限:2026/05/09
所在地神奈川県平塚市龍城ケ丘9番18-1号[周辺地図]
交 通東海道本線「平塚」駅徒歩15分





☆ご契約でVポイント(旧T-ポイント)が貯まります☆
☆平塚駅まで徒歩15分で交通もお買物も便利です!
☆人気の都市ガスエリア
☆LDKは広々の17帖越え!!
☆収納スペース豊富で、片づけも楽々
☆温水床暖房付で冬場も快適にお過ごし頂けます
☆食洗機付きで家事も楽々
☆是非、ご覧くださいませ♪
☆平塚駅まで徒歩15分で交通もお買物も便利です!
☆人気の都市ガスエリア
☆LDKは広々の17帖越え!!
☆収納スペース豊富で、片づけも楽々
☆温水床暖房付で冬場も快適にお過ごし頂けます
☆食洗機付きで家事も楽々
☆是非、ご覧くださいませ♪
すべての画像
物件詳細情報
物件No.20000402203
| 所在地 | 神奈川県平塚市龍城ケ丘9番18-1号 | ||
|---|---|---|---|
| 交通 | 東海道本線「平塚」駅徒歩15分 | ||
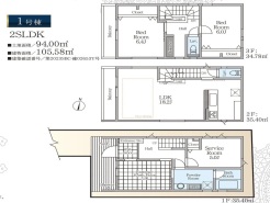
| 間取 | 2SLDK | ||
| 土地面積 | 90.14m² ~ 94m² | ||
| 建物面積 | 105.37m² ~ 110.33m² | ||
| 販売戸数 | 3戸 | 総戸数 | 全3戸 |
| 構造・規模 | 木造 3階建て | 築年・入居 | 2025年5月下旬 |
| バルコニー | 西向き | 建物現況 | 完成済 |
| 建築確認番号 | 第2023SBC-確02653Y号 他 | 引渡時期 | 相談 |
| 地目 | 宅地 | 用途地域 | 第一種中高層住居専用地域 |
| 建ぺい率 | 60% | 容積率 | 200% |
| 都市計画 | 市街化区域 | 権利種類 | 所有権 |
| 接道 | 西側7.5M公道に接道 | 小学校区 | 花水小学校 |
| 中学校区 | 浜岳中学校 | 取引態様 | 媒介 |
| 設備 | 公営水道、本下水、都市ガス | ||
| 備考・制限等 | ※準防火地域 ※第2種高度地区 |
||
こだわり項目
閑静な住宅地LDK15帖以上床暖房食器洗浄機浄水器システムキッチン3口以上コンロパントリー(食器・食品の収納庫)トイレ2ヶ所温水洗浄便座浴室乾燥機浴室暖房電動シャッター小学校800m以内コンビニ400m以内陽当り良好フラット35Sに対応
- ※価格は物件の代金総額を表示しており、消費税が課税される場合は税込み価格です。(1,000円未満は切り上げ。)
税率は引き渡し時期により異なりますので、各物件の詳細につきましてはお問い合わせください。 - ※敷地権利が借地権のものは価格に権利金を含みます。
- ※制作中に内容が変更される場合もありますので、あらかじめご了承ください。
- ※購入の前には物件内容や契約条件についてご自身で十分な確認をしていただくようにお願いいたします。
- ※完成予想図はいずれも外構、植栽、外観等実際のものとは多少異なることがあります。
- ※CG合成の画像の場合、実際とは多少異なる場合があります。
周辺地図
周辺施設一覧
- ショッピングセンター
- スーパー
- コンビニ
- ドラッグストア
- ホームセンター
- 飲食店
- その他店舗
- 商店街
- 大学
- 専門学校
- 高校・高専
- 中学校
- 小学校
- 保育園
- 幼稚園
- 公民館・児童館
- 病院
- 郵便局
- 役所
- 図書館
- 金融機関
- 警察・消防
- 趣味・娯楽施設
- 公園・運動施設
- 周辺の街並み
- 駅
- その他
お問い合せ先
- 株式会社大雄
- お電話でのお問い合わせは
0463-33-8000「ホームページを見た」とお問い合わせください - 神奈川県平塚市中原1-17-1
- 営業時間:9:00‐17:00
- 定休日:毎週火曜日・水曜日
- 免許番号:神奈川県知事許可(14)第7627号
- HOME
- 新築一戸建てをエリアから探す
- 平塚市
- 龍城ケ丘
- BEN’sGrande龍城ヶ丘





















