- HOME
- 新築一戸建てをエリアから探す
- 平塚市
- 平塚
- いろどりアイタウン平塚市平塚3丁目全15邸
新築一戸建て
いろどりアイタウン平塚市平塚3丁目全15邸
情報更新日:2026/05/07 次回更新予定日:2026/05/21 取引条件有効期限:2026/05/21
所在地神奈川県平塚市平塚3丁目21-2[周辺地図]
交 通東海道本線「平塚」駅徒歩18分〜20分





☆ご契約でVポイントが貯まります☆
☆自然豊かな新規分譲地
☆「平塚」駅徒歩18分~20分
☆会話が弾む対面キッチン
☆是非、ご覧下さい♪
☆自然豊かな新規分譲地
☆「平塚」駅徒歩18分~20分
☆会話が弾む対面キッチン
☆是非、ご覧下さい♪
すべての画像
☆DAIYU春の感謝祭☆ ~令和8年5月末まで~ お得なこの機会に是非、お問い合わせ下さいませ♪
14号棟 外観
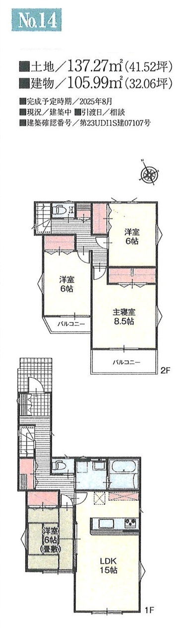
14号棟 間取り図
14号棟 LDK
14号棟 LDK
14号棟 LDK
14号棟 キッチン
14号棟 キッチン
14号棟 洋室6帖
14号棟 洋室6帖 収納
14号棟 洋室6帖
14号棟 洋室6帖 収納
14号棟 洋室6帖南側バルコニー
14号棟 洋室6帖南側バルコニー
14号棟 洋室8.5帖
14号棟 洋室8.5帖
物件詳細情報
物件No.20000362496
| 所在地 | 神奈川県平塚市平塚3丁目21-2 | ||
|---|---|---|---|
| 交通 | 東海道本線「平塚」駅徒歩18分〜20分 東海道本線「平塚」駅バス5分 バス停「古花水」停歩2分〜4分 |
||
| 間取 | 4LDK | ||
| 土地面積 | 137.27m² ~ 139.65m² | ||
| 建物面積 | 105.98m² ~ 105.99m² | ||
| 販売戸数 | 2戸 | 総戸数 | 全15戸 |
| 構造・規模 | 木造 2階建て | 築年・入居 | 2025年9月 |
| 建物現況 | 完成済 | 建築確認番号 | 第23UDI1S建07107号他 |
| 駐車スペース | あり 料金:無料 | 引渡時期 | 相談 |
| 地目 | 宅地 | 用途地域 | 第一種住居地域 |
| 建ぺい率 | 60% | 容積率 | 200% |
| 都市計画 | 市街化区域 | 権利種類 | 所有権 |
| 小学校区 | 富士見小学校 | 中学校区 | 春日野中学校 |
| 取引態様 | 媒介 | ||
| 設備 | 公営水道、本下水、都市ガス | ||
| 備考・制限等 | 準防火地域・第2種高度地区・景観法・国土利用計画法・景観法・平塚市まちづくり条例 | ||
こだわり項目
保育園・幼稚園800m以内
- ※価格は物件の代金総額を表示しており、消費税が課税される場合は税込み価格です。(1,000円未満は切り上げ。)
税率は引き渡し時期により異なりますので、各物件の詳細につきましてはお問い合わせください。 - ※敷地権利が借地権のものは価格に権利金を含みます。
- ※制作中に内容が変更される場合もありますので、あらかじめご了承ください。
- ※購入の前には物件内容や契約条件についてご自身で十分な確認をしていただくようにお願いいたします。
- ※完成予想図はいずれも外構、植栽、外観等実際のものとは多少異なることがあります。
- ※CG合成の画像の場合、実際とは多少異なる場合があります。
周辺地図
周辺施設一覧
- ショッピングセンター
- スーパー
- コンビニ
- ドラッグストア
- ホームセンター
- 飲食店
- その他店舗
- 商店街
- 大学
- 専門学校
- 高校・高専
- 中学校
- 小学校
- 保育園
- 幼稚園
- 公民館・児童館
- 病院
- 郵便局
- 役所
- 図書館
- 金融機関
- 警察・消防
- 趣味・娯楽施設
- 公園・運動施設
- 周辺の街並み
- 駅
- その他
お問い合せ先
- 株式会社大雄
- お電話でのお問い合わせは
0463-33-8000「ホームページを見た」とお問い合わせください - 神奈川県平塚市中原1-17-1
- 営業時間:9:00‐17:00
- 定休日:毎週火曜日・水曜日
- 免許番号:神奈川県知事許可(14)第7627号
- HOME
- 新築一戸建てをエリアから探す
- 平塚市
- 平塚
- いろどりアイタウン平塚市平塚3丁目全15邸


















